











Astazi am placerea de a va prezenta spre achizitionare un apartament situat in zona Kiseleff, in apropierea parcului cu acelasi nume, situat la ultimul nivel al unui imobil exclusivist S+P+5, finalizat in 2012.
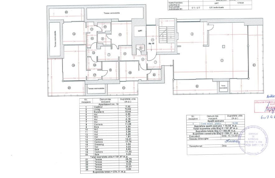
Are o suprafata construita de 310 mp, o suprafata utila de 192 mp si 2 terase generoase cu suprafata insumata de 80 mp.
Este compus din living spatios cu zona de dining si bucatarie complet mobilata si utilata, dormitor matrimonial cu baie proprie si dressing, doua dormitoare secundare cu bai proprii, 2 bai de serviciu si 2 terase, cu vedere libera.
Apartamentul este partial mobilat si utilat, finisajele sunt premium, beneficiaza de 2 locuri de parcare in garajul subteran si este recomandat pentru resedinta,. avand in vedere locatia premium.
Pozele folosite sunt cu tittlu informativ.