





































Vilă interbelică restaurată, disponibilă pentru închiriere în cartierul Dorobanți Capitale. Proprietatea se remarcă prin eleganța arhitecturii, compartimentarea funcțională și poziționarea excelentă – disponibilă pentru închiriere exclusiv ca spațiu de birouri.
Caracteristici generale
Suprafață utilă: 360 mp
Regim de înălțime: D+P+2E
Nemobilată, cu două bucătării complet echipate
Compartimentare
Demisol (50 mp): open space, 1 baie, cameră tehnică
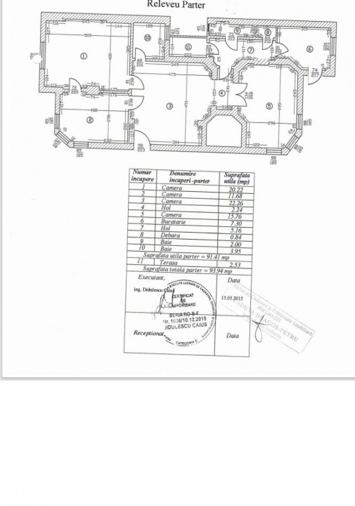
Parter (100 mp): 3 camere, hol reprezentativ, 2 băi
Etaj 1 (100 mp): 3 camere, hol tip living, 2 băi, 2 balcoane
Etaj 2 (110 mp): open space, 1 baie, terasă cu vedere deschisă
Dotări și facilități
Curte
Aer condiționat
Centrală termică
Conectivitate prin fibră optică
Sistem de alarmă și videointerfon
Locație
Amplasată în Dorobanți Capitale, una dintre cele mai frumoase și apreciate zone din București, vila beneficiază de acces direct către Bd. Aviatorilor și Calea Dorobanți. În vecinătate se află restaurante selecte, ambasade și instituții de prestigiu, iar transportul public este la câteva minute de mers pe jos.